Our office is affiliated with Baerz & Co Luxury Homes, a joint-venture of selected, privately owned boutique luxury home offices in 20 countries around the Mediterranean, the Alps, Mexico and Dubai. For more information about these properties, please contact our office.

RHENEN
Grebbeweg 47 - 3911 AT
Netherlands

Price on application
Living Area
288m2
Plot Size
1058m2
Bedrooms
8

Description

Welcome to this magnificent luxury gentleman’s villa in picturesque Rhenen

A true gem that stands out for its perfect blend of elegance, space, and superb finishes. With an expansive living area of approx. 288 m², 9 rooms, and a volume of approx. 1,230 m³ on a generous plot of approx. 1,060 m², this villa offers everything you need for comfortable, stylish living. Here you’ll experience the luxury of peace, space, and modern comfort in a central location close to all amenities.

Upon arrival, the impressive gravel driveway immediately catches the eye. This generous drive provides ample parking for multiple vehicles and leads to the villa’s elegant entrance. You are welcomed into a large, spacious hall that exudes grandeur, complete with a beautifully finished WC—convenient for both residents and guests. The hall provides access to the various living spaces that make this home so unique.

The living room is a real showpiece with its herringbone floor and elegant décor. Cleverly laid out, it offers several cosy seating areas so you can enjoy different corners and outlooks within the room. Abundant windows bathe the space in natural light throughout the day, enhancing its bright, open feel. It’s the perfect place to relax with a good book or entertain guests in style.

On the other side of the hall is the luxurious kitchen. Spacious and modern, it is fitted with high-quality built-in appliances and offers extensive work and storage space—a dream for any cooking enthusiast, with plenty of room for serious cooking and baking. The kitchen flows seamlessly into the dining room, an inviting space that comfortably accommodates larger gatherings—ideal for relaxed family dinners or more formal occasions with friends. From the kitchen you also have access to the practical utility room, perfect for extra storage and as a laundry area.

From the hall, an impressive staircase—an architectural feature running like a red thread through the home—leads to the first floor.

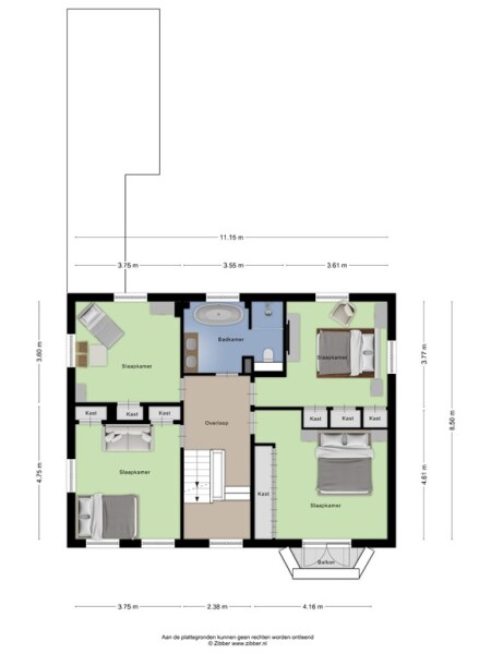
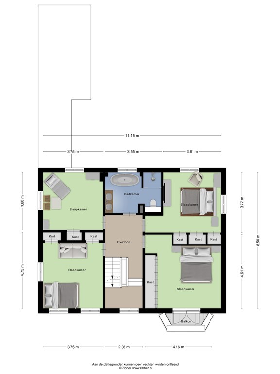
On the first floor there are four generous bedrooms. Each room is beautifully finished and highly versatile: whether you need extra bedrooms, a home office, hobby room, or fitness space, these rooms can be arranged to suit. The finely finished bathroom on this floor features a luxurious freestanding tub, a serene spot to unwind and enjoy a moment to yourself.

The second floor offers another four bedrooms, again with multi-purpose potential—think additional bedrooms, playrooms, or even a private office. There is also a large room with a seating area, ideal as a lounge or recreation space where children can play, teens can retreat, or you can host a cosy movie night.

Outside, a large garden awaits with countless possibilities for recreation and relaxation. There is ample space for children to play, to create a vegetable garden, or to design multiple seating areas for unwinding. Whether you’re hosting a summer BBQ, gardening, or simply relaxing in peace, this garden has it all—a perfect extension of the indoor living space and a true invitation to outdoor living. The planting is wonderfully traditional with rose bushes and richly planted borders.

The villa also includes a spacious garage, ideal for vehicles, bicycles, and for storing garden tools and other items.

This beautiful villa enjoys a central location in Rhenen, a short distance from the NS railway station, shops, supermarkets, sports clubs (tennis/football), inviting restaurants, and the renowned Ouwehands Zoo. You’ll live in a tranquil setting with every convenience close at hand. Its central position makes this the perfect base for both commuting and leisure.

General Information
- Property type: Detached villa
- Year built: 1941
- Renovation years: 2021/2022
- Exterior paintwork: 2025
- Number of rooms: 9
- Number of bedrooms: 8
- Number of bathrooms: 1
- Parking: On private grounds
- Features: Dormer, garage, utility room, and spacious cellars
- Garden orientation: Around the house, with the rear garden as the main garden
- Garden access: From the side and via the house

Technical Details
- Hot water: Combi boiler with cylinder (Nefit 2016)
- Heating: Combi boiler with electric cylinder (both Nefit 2016)
- Underfloor heating: In the hall, kitchen, bathroom, and WC
- Solar panels: Present
- Wood-burning stove in the living room
- Features: External sunshades / cellar / EV charging point
- Mechanical ventilation: Present
- Insulation: Fully insulated
- Double glazing: Throughout
- TV cable
- Window frames: Wood

Would You Like to Take a Look Inside?

For more information about this property, please contact our office in Rhenen.

You are most welcome! The best impression of this home is, of course, gained during a viewing. We schedule viewings in consultation with both seller and buyer and take ample time so you can explore and experience the property at your leisure.

Note: This information has been compiled with the utmost care. No rights can be derived from any inaccuracies or omissions in the data or drawings provided.

Features

Solar panels
Garage
Transfer of ownership
Price on application
Status
Available
Acceptance
In Concert
Reference
07996
Construction
Kind of house
Villa
Building type
Detached House
Construction period
1941
Energy rating
C
Bedrooms
8
Bathrooms
1
Surface Areas And Volume
Living Area
288 m2
Other indoor space
45 m2
Exterior space attached to the buildinge
4 m2
Volume in cubic meters
1232 m3
Plot Size
1058 m2
Facilities
Garage
Garden
Internetconnection
Outdoorawnings
Solarpanels
Ventilation
Baerz & Co Property Brochure

Brochure

Videos

Floor Plans

Zonnenberg Makelaardij

Kerkewijk 108
3904 JG Veenendaal

info@zonnenbergmakelaardij.nl
+31 318 559600

www.zonnenbergmakelaardij.nl

Information / Viewing request

Wistik Zonnenberg profile image
Wistik Zonnenberg
Register Makelaar Taxateur/ Eigenaar

Buying a Luxury Property in Rhenen

Rhenen offers elevated living amidst river views and heritage charm. Residents enjoy a vibrant, close-knit community, expert property services, and seamless integration with the international lifestyle.